
価格表

1号地 間取り

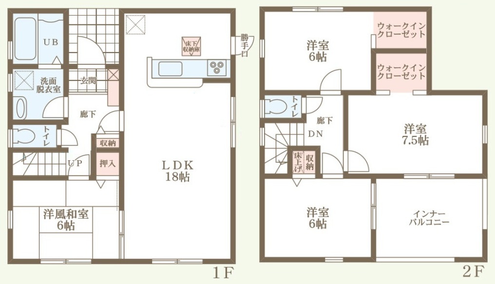
2号地 間取り

写真 1号地更地状態時

写真 2号地更地状態時

キッチン(イメージ)

浴室(イメージ)

洗面化粧台(イメージ)

トイレ(イメージ)

玄関収納(イメージ)

バルコニー(イメージ)
物件情報更新日:2025年12月19日
『仲介手数料無料』 物件!人気の希少地、香芝市磯壁に限定2区画!オール電化住宅!
香芝市磯壁1丁目第5 新築一戸建て 限定2区画!
香芝市磯壁1丁目
| 所在地 | 土地面積/坪数 | 総区画数 | 建物面積 | 建築年月 | 価格 |
|---|---|---|---|---|---|
| 香芝市磯壁1丁目 | 165.10㎡/49.94坪 | 2 | 110.96㎡ | R7.11完成予定 | 3,380万円~ |
| 交通 | 近鉄大阪線『近鉄下田』駅 徒歩15分! 近鉄南大阪線『二上神社口』駅 徒歩10分! |
学校区域 | 三和小学校 1200m ・香芝中学校 500m |
|---|
| 外観写真 | 区画図面 |
|---|---|
|
|






















| 物件No. | HK-KI5 | 物件種別 | 新築戸建 | 土地権利 | 所有権 |
|---|---|---|---|---|---|
| 地目 | 宅地 | 用途地域 | 第1種住居地域 | 都市計画 | 市街化区域 |
| 建ぺい率/容積率 | 60%/200% | 建築条件 | - | ||
| 構造 | 木造軸組構法(在来工法) | 階建て | 2階建て | 間取り詳細 | 洋3・LDK1 |
| 設備 | 関西電力/公営水道/公共下水/ ペアガラス/床下収納庫/ 浴室暖房/温水洗浄便座/ -/ 駐車場有/オール電化/ モニタ付インターホン/ /その他の設備:玄関扉(スマートコントロールキー搭載) | ||||
| 引渡 | R7.11予定 | 現況 | 建築中 | 取引形態 | 仲介 |
| 備考 | 【フラット35】S利用可 住宅瑕疵担保保証金供託物件 | ||||
※各種情報と現況に差異がある場合は、現況優先となります。