
価格表

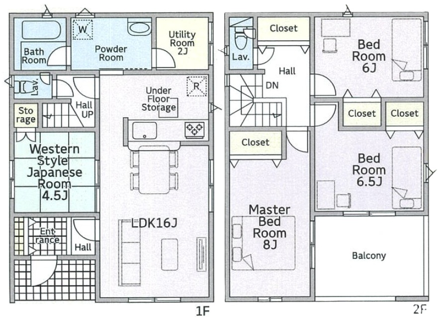
1号地 間取り

トイレ(イメージ)

洗面化粧台(イメージ)

浴室(イメージ)

キッチン(イメージ)

バルコニー(イメージ)
物件情報更新日:2026年3月24日
『仲介手数料無料』 物件!人気の希少地、橿原市土橋町に限定1区画!大幅値下げしました!
橿原市土橋町第4 新築一戸建て 限定1区画!
橿原市土橋町
| 所在地 | 土地面積/坪数 | 総区画数 | 建物面積 | 建築年月 | 価格 |
|---|---|---|---|---|---|
| 橿原市土橋町 | 130.03㎡/39.33坪 | 1 | 109.95㎡ | R8.3 | 3,080万円 |
| 交通 | 近鉄大阪線『真菅』駅 徒歩10分! | 学校区域 | - |
|---|
| 外観写真 | 区画図面 |
|---|---|
|
|














| 物件No. | AN-KT4 | 物件種別 | 新築戸建 | 土地権利 | 所有権 |
|---|---|---|---|---|---|
| 地目 | 宅地 | 用途地域 | 準工業地域 | 都市計画 | 市街化区域 |
| 建ぺい率/容積率 | 60%/200% | 建築条件 | - | ||
| 構造 | 木造軸組構法(在来工法) | 階建て | 2階建て | 間取り詳細 | 洋3・和1・LDK1 |
| 設備 | 都市ガス/関西電力/公営水道/個別浄化槽/ ペアガラス/床下収納庫/ 浴室暖房/温水洗浄便座/ -/ 駐車場有/ モニタ付インターホン/ /その他の設備:玄関扉(スマートコントロールキー搭載) | ||||
| 引渡 | 即可 | 現況 | 完成済 | 取引形態 | 仲介 |
| 備考 | 【フラット35】S利用可 住宅瑕疵担保保証金供託物件 | ||||
※各種情報と現況に差異がある場合は、現況優先となります。