トップページ » 売買物件情報,新築戸建て,橿原市 » 橿原市大久保町第1 新築一戸建て 残り3区画!
検索一覧画面に戻る

物件情報更新日:2026年3月24日

『仲介手数料無料』 物件!人気の希少地、橿原市大久保町に全4区画!大幅値下げしました!

橿原市大久保町第1 新築一戸建て 残り3区画!

橿原市大久保町

人気の橿原市大久保町の新築一戸建て。
『仲介手数料無料』物件につき諸費用が 91万円以上もお得!
畝傍御陵前駅から徒歩圏内で通勤に便利・商業施設も充実の好立地に土地39坪超のゆったり敷地!前面道路6mで楽々駐車!駐車スペース2台以上確保!近隣に商業施設が充実しており、奥様楽々!近隣に商業施設が充実しており、奥様楽々!耐震等級3を取得・設計住宅評価書を取得済で地震にも安心です!
価格
2,580万円~
(外構工事費・消費税込)
所在地 土地面積/坪数 総区画数 建物面積 建築年月 価格
橿原市大久保町 131.48㎡~/39.77坪~ 4 94.16㎡~ R8.3 2,580万円~
交通 近鉄橿原線『畝傍御陵前』駅 徒歩8分! 学校区域 -
外観写真 区画図面
【橿原市大久保町第1 新築一戸建て 残り3区画!】外観写真 【橿原市大久保町第1 新築一戸建て 残り3区画!】区画図面

価格表

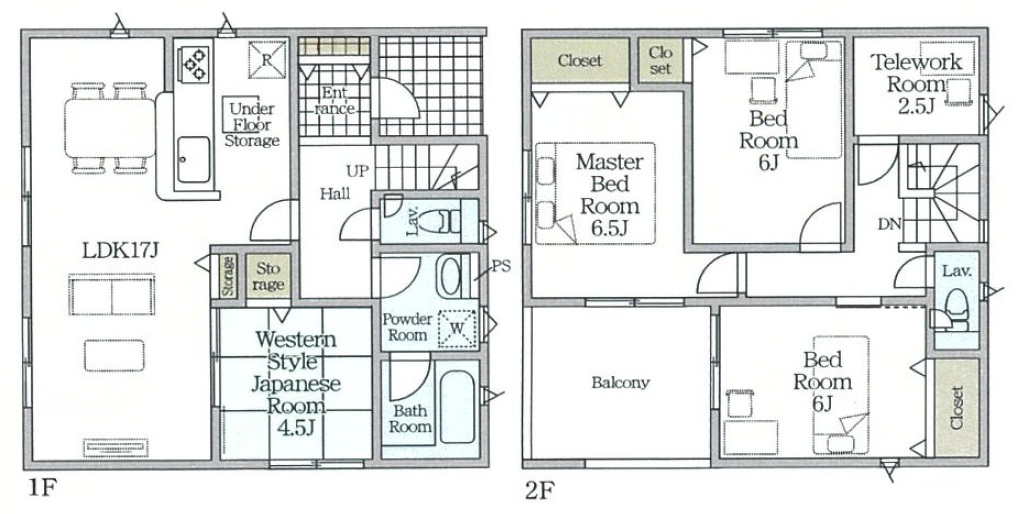
1号地 間取り

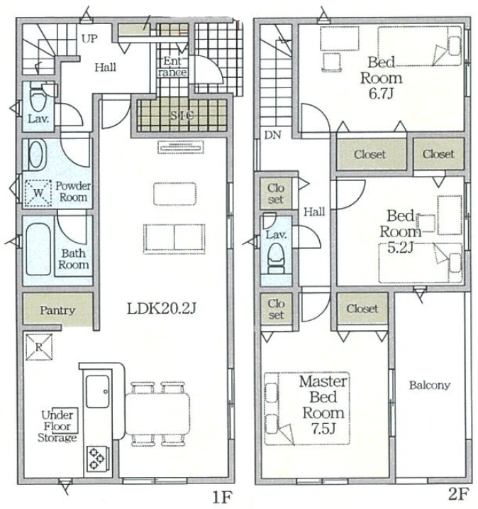
2号地 間取り

3号地 間取り

4号地 間取り

トイレ(イメージ)

洗面化粧台(イメージ)

浴室(イメージ)

キッチン(イメージ)

バルコニー(イメージ)

価格表

1号地 間取り

2号地 間取り

3号地 間取り

4号地 間取り

トイレ(イメージ)

洗面化粧台(イメージ)

浴室(イメージ)

キッチン(イメージ)

バルコニー(イメージ)
物件No. AN-KO1 物件種別 新築戸建 土地権利 所有権
地目 宅地 用途地域 第1種住居地域 都市計画 市街化区域
建ぺい率/容積率 60%/200% 建築条件 -
構造 木造軸組構法(在来工法) 階建て 2階建て 間取り詳細 洋3・LDK1
設備 都市ガス/関西電力/公営水道/公共下水/ ペアガラス/床下収納庫/ 浴室暖房/温水洗浄便座/ -/ 駐車場有/ モニタ付インターホン/ /その他の設備:玄関扉(スマートコントロールキー搭載)
引渡 即可 現況 完成済 取引形態 仲介
備考 【フラット35】S利用可 住宅瑕疵担保保証金供託物件

※各種情報と現況に差異がある場合は、現況優先となります。

橿原市大久保町第1 新築一戸建て 残り3区画!についての問合せ
  1. 物件番号:
  2. 物件名:
  1. お問合せ内容
  1. (必須項目)
  2. (Email確認必須)
  3. - - ※お電話でのご連絡が必要な方はご入力ください。
  4. ※他にご要望がありましたら
    ご入力ください。

お問い合わせいただいた後、しばらくたっても、システムによる自動返信メールがお客様が入力されたメールアドレスに届かない場合、「迷惑メール」や「ゴミ箱」フォルダの確認をお願いします。
雅不動産販売からの返信メールが迷惑メールと判断され、これらのフォルダに振り分けられている可能性があります。
そのままでは、担当者からのメールも届きませんので、もし、これらのフォルダに入っていた場合は、受信箱に移動して迷惑メールとして扱われないように設定をお願いします。 (雅不動産販売からの返信メールアドレス:welcome@miyabi-fudousan.com)
自動返信メールが届かず、メール設定もだめな場合は、お手数ですがお電話(0745-43-7201)にてお問い合わせ下さい。