トップページ » 売買物件情報,新築戸建て,奈良市 » 奈良市東九条町第21 新築一戸建て 限定2区画!
検索一覧画面に戻る

物件情報更新日:2026年3月31日

『仲介手数料無料』 物件!人気の希少地、奈良市東九条町に限定2区画!オール電化住宅!

奈良市東九条町第21 新築一戸建て 限定2区画!

奈良市東九条町

人気の奈良市東九条町の新築一戸建て。オール電化住宅!南向き宅地!
『仲介手数料無料』物件につき諸費用が 104万円以上もお得!
土地54坪超のゆったり敷地!駐車スペース並列2台確保!近隣に商業施設が充実しており、奥様楽々!LDK16帖+和室の続き間で広々快適!WICがあり収納も充実!洗濯物干しも雨の日も安心の広々インナーバルコニー☀制震装置(SAFE365)搭載で耐震等級3を取得・設計住宅評価書を取得済で地震にも安心です!
価格
2,980万円~
(外構工事費・消費税込)
所在地 土地面積/坪数 総区画数 建物面積 建築年月 価格
奈良市東九条町 179.01㎡~/54.15坪~ 2 100.03㎡~ R8.6完成予定 2,980万円~
交通 JR関西本線『奈良』駅 バス30分『辰市農協』停歩6分! 学校区域 -
外観写真 区画図面
【奈良市東九条町第21 新築一戸建て 限定2区画!】外観写真 【奈良市東九条町第21 新築一戸建て 限定2区画!】区画図面

価格表

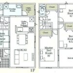
1号地間取り

2号地間取り

和室(イメージ)

キッチン(イメージ)

浴室(イメージ)

洗面化粧台(イメージ)

トイレ(イメージ)

玄関収納(イメージ)

価格表

1号地間取り

2号地間取り

和室(イメージ)

キッチン(イメージ)

浴室(イメージ)

洗面化粧台(イメージ)

トイレ(イメージ)

玄関収納(イメージ)
物件No. AN-NTK21 物件種別 新築戸建 土地権利 所有権
地目 宅地 用途地域 第1種住居地域 都市計画 市街化区域
建ぺい率/容積率 60%/200% 建築条件 -
構造 木造軸組構法(在来工法) 階建て 2階建て 間取り詳細 洋3・和1・LDK1
設備 関西電力/公営水道/公共下水/ ペアガラス/床下収納庫/ 浴室暖房/温水洗浄便座/ -/ 駐車場有/オール電化/ モニタ付インターホン/ /その他の設備:玄関灯(人感センサー機能付き)
引渡 R8.6予定 現況 建築中 取引形態 仲介
備考 【フラット35】S利用可 住宅瑕疵担保保証金供託物件

※各種情報と現況に差異がある場合は、現況優先となります。

奈良市東九条町第21 新築一戸建て 限定2区画!についての問合せ
  1. 物件番号:
  2. 物件名:
  1. お問合せ内容
  1. (必須項目)
  2. (Email確認必須)
  3. - - ※お電話でのご連絡が必要な方はご入力ください。
  4. ※他にご要望がありましたら
    ご入力ください。

お問い合わせいただいた後、しばらくたっても、システムによる自動返信メールがお客様が入力されたメールアドレスに届かない場合、「迷惑メール」や「ゴミ箱」フォルダの確認をお願いします。
雅不動産販売からの返信メールが迷惑メールと判断され、これらのフォルダに振り分けられている可能性があります。
そのままでは、担当者からのメールも届きませんので、もし、これらのフォルダに入っていた場合は、受信箱に移動して迷惑メールとして扱われないように設定をお願いします。 (雅不動産販売からの返信メールアドレス:welcome@miyabi-fudousan.com)
自動返信メールが届かず、メール設定もだめな場合は、お手数ですがお電話(0745-43-7201)にてお問い合わせ下さい。