トップページ » 売買物件情報,新築戸建て,平群町 » 平群町若葉台第1 新築一戸建て 全5区画!
検索一覧画面に戻る

物件情報更新日:2026年4月17日

『仲介手数料無料』 物件!人気の希少地、平群町若葉台に全5区画!

平群町若葉台第1 新築一戸建て 全5区画!

生駒郡平群町若葉台4丁目

人気の平群町若葉台の新築一戸建て。
『仲介手数料無料』物件につき諸費用が 95万円以上もお得!
土地50坪超のゆったり敷地!今なら土地売りが2区画。お好きなメーカーで建築が出来ます。開発現場に付き新しい街並み・道路も6mあり、すっきりした区画です。駐車スペース並列2台以上確保!南側大空間の庭が有り採光・通風抜群です。制振装置『SAFE365』搭載で安心で耐震等級3を取得・設計住宅評価書を取得済で地震にも安心です!
価格
2,680万円~
(外構工事費・消費税込)
所在地 土地面積/坪数 総区画数 建物面積 建築年月 価格
生駒郡平群町若葉台4丁目 166.40㎡~/50.33坪~ 5 95.58㎡~ R8.7完成予定 2,680万円~
交通 近鉄生駒線『元山上口』駅 徒歩22分! 学校区域 -
外観写真 区画図面
【平群町若葉台第1 新築一戸建て 全5区画!】外観写真 【平群町若葉台第1 新築一戸建て 全5区画!】区画図面

価格表

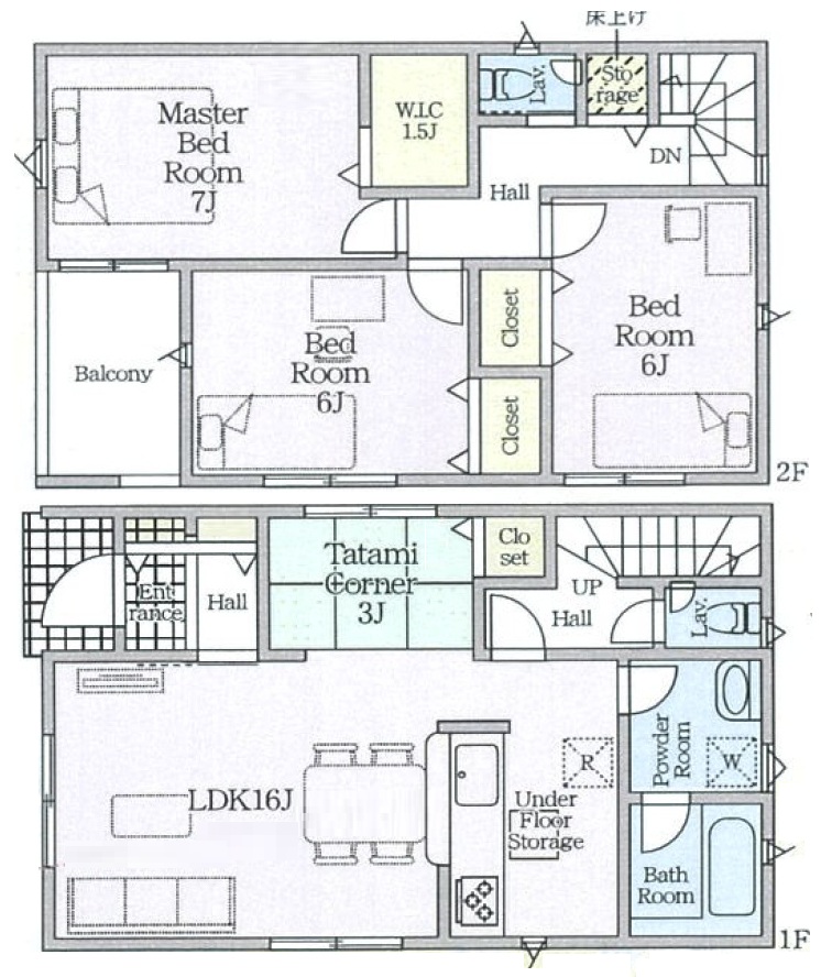
3号地 間取り

4号地 間取り

5号地 間取り

キッチン(イメージ)

浴室(イメージ)

洗面化粧台(イメージ)

トイレ(イメージ)

バルコニー(イメージ)

価格表

3号地 間取り

4号地 間取り

5号地 間取り

キッチン(イメージ)

浴室(イメージ)

洗面化粧台(イメージ)

トイレ(イメージ)

バルコニー(イメージ)
物件No. AN-HW1 物件種別 新築戸建 土地権利 所有権
地目 宅地 用途地域 第1種低層住居専用地域 都市計画 市街化区域
建ぺい率/容積率 40%/60% 建築条件 -
構造 木造軸組構法(在来工法) 階建て 2階建て 間取り詳細 洋3・和1・LDK1
設備 都市ガス/関西電力/公営水道/公共下水/ ペアガラス/床下収納庫/ 浴室暖房/温水洗浄便座/ -/ 駐車場有/ モニタ付インターホン/ /その他の設備:玄関灯(人感センサー機能付き)
引渡 R8.7予定 現況 建築中 取引形態 仲介
備考 【フラット35】S利用可 住宅瑕疵担保保証金供託物件

※各種情報と現況に差異がある場合は、現況優先となります。

平群町若葉台第1 新築一戸建て 全5区画!についての問合せ
  1. 物件番号:
  2. 物件名:
  1. お問合せ内容
  1. (必須項目)
  2. (Email確認必須)
  3. - - ※お電話でのご連絡が必要な方はご入力ください。
  4. ※他にご要望がありましたら
    ご入力ください。

お問い合わせいただいた後、しばらくたっても、システムによる自動返信メールがお客様が入力されたメールアドレスに届かない場合、「迷惑メール」や「ゴミ箱」フォルダの確認をお願いします。
雅不動産販売からの返信メールが迷惑メールと判断され、これらのフォルダに振り分けられている可能性があります。
そのままでは、担当者からのメールも届きませんので、もし、これらのフォルダに入っていた場合は、受信箱に移動して迷惑メールとして扱われないように設定をお願いします。 (雅不動産販売からの返信メールアドレス:welcome@miyabi-fudousan.com)
自動返信メールが届かず、メール設定もだめな場合は、お手数ですがお電話(0745-43-7201)にてお問い合わせ下さい。